LF3 - 220 SF Office with 350 SF Private Storage and Separate Entry [LEASED! *Contact Us for Waitlist Options]
LF3 - 220 SF Office with 350 SF Private Storage and Separate Entry [LEASED! *Contact Us for Waitlist Options]
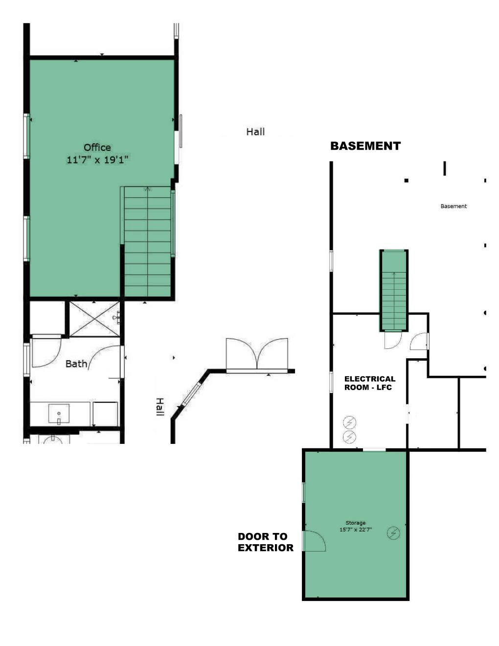
LF3 is a 220 SF office that can be utilized as single or double occupancy. There is a private staircase that leads into a 350 SF lockable storage area in the basement with direct access to the exterior for easy loading and unloading.
Offered fully furnished or bring your own for optimal flexibility!
![LF3 - 220 SF Office with 350 SF Private Storage and Separate Entry [LEASED! *Contact Us for Waitlist Options]](http://lafermecoworking.com/cdn/shop/files/LF_3_570_2fb97bcc-9aad-4f0f-9b05-9d8d7fc9fa67.jpg?v=1754791768&width=1445)