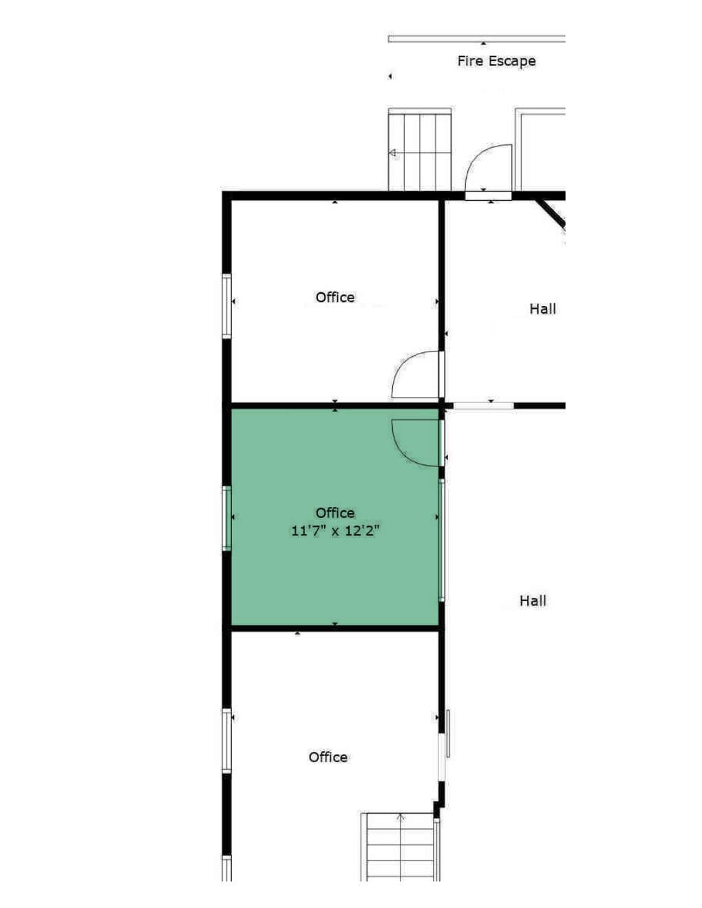
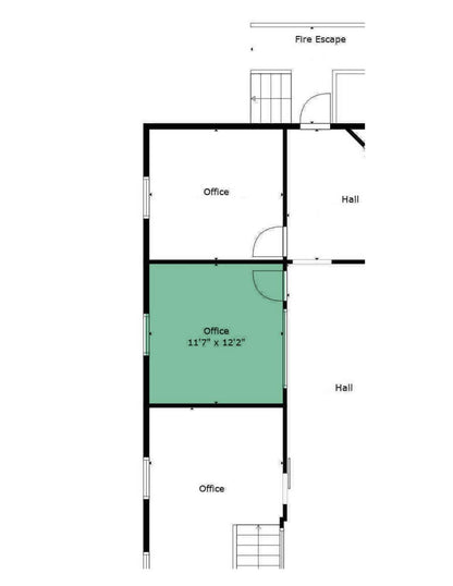
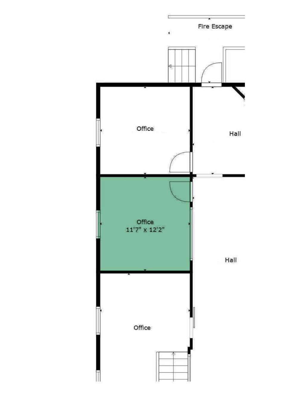
LF4 - 140 Square Feet [LEASED! *Contact Us for Waitlist Options]
LF4 - 140 Square Feet [LEASED! *Contact Us for Waitlist Options]
LF4 is approximately 140 SF with ample natural daylight and a viewing window into the hallway. Located close to the private entrance via the rear fire escape for privacy, blended with accessibility for clients.
![LF4 - 140 Square Feet [LEASED! *Contact Us for Waitlist Options]](http://lafermecoworking.com/cdn/shop/files/LF_4_140_b6ff5bbf-3930-44a9-9523-b308de874dbb.jpg?v=1754700968&width=1445)