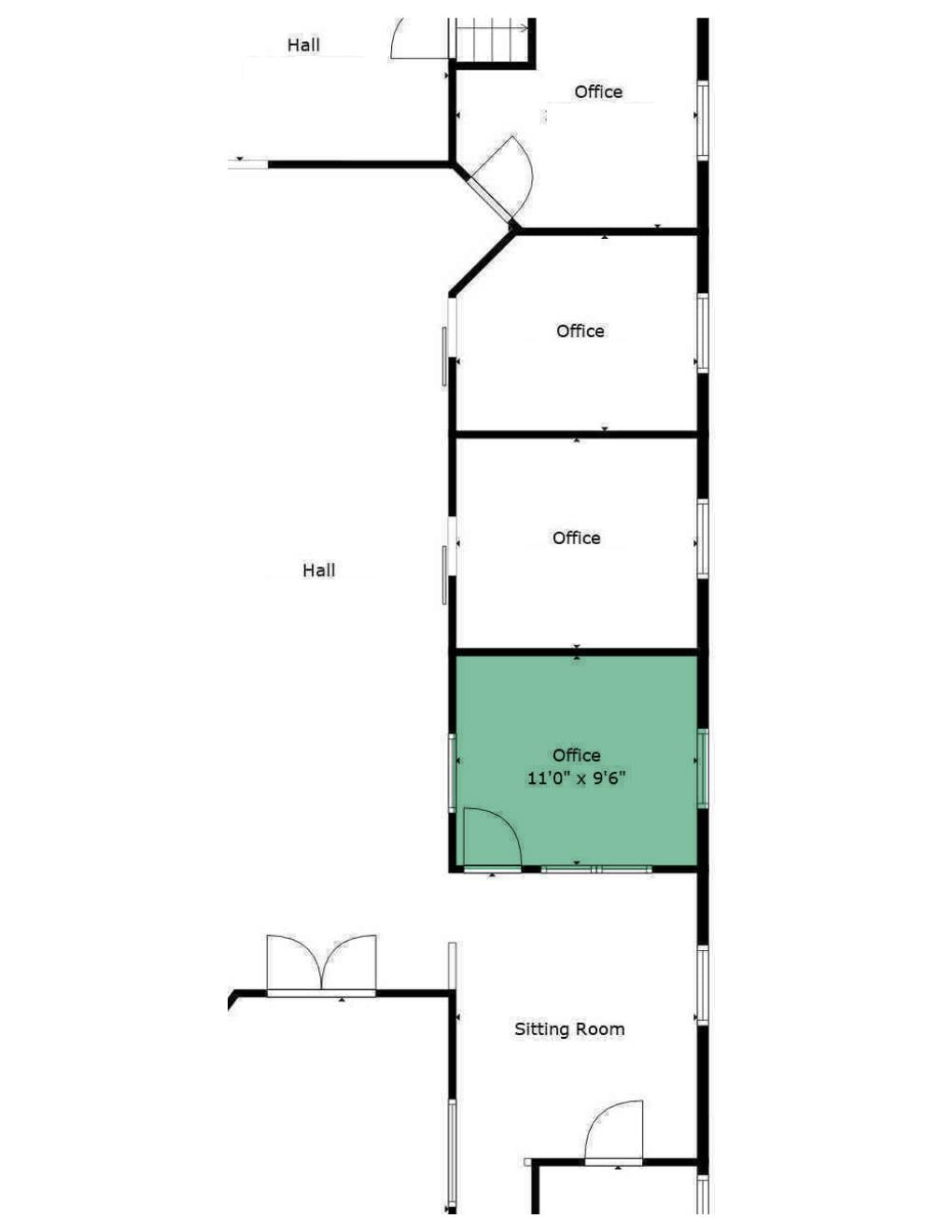
LF8 - 105 Square Feet
LF8 - 105 Square Feet
LF8 is approximately 105 SF with ample natural daylight and a viewing window into the hallway and the front sitting room. This is the first office from the main entrance giving it great visibility and access for clients while maintaining privacy. With built in desk space, working counter and plenty of cabinet storage, this would be a great space for any Maker or Online business!
