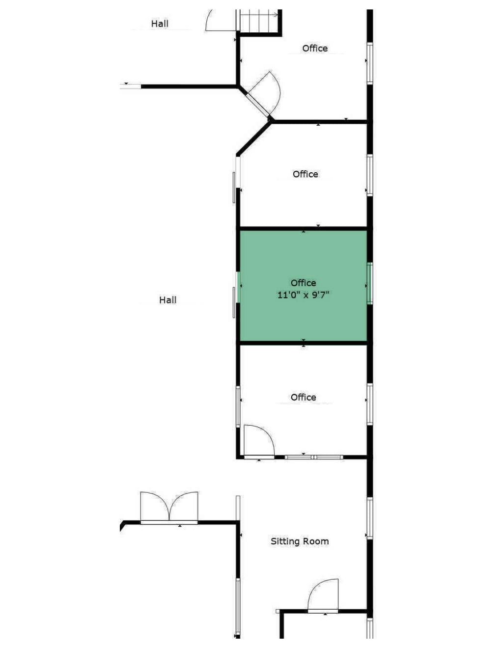
LF7 - 105 Square Feet [LEASED! *Contact Us for Waitlist Options]
LF7 - 105 Square Feet [LEASED! *Contact Us for Waitlist Options]
LF7 is approximately 105 SF and can be utilized as single or double occupancy. The high set window allows natural daylight and fresh air while maintaining ample privacy and minimal distraction.
![LF7 - 105 Square Feet [LEASED! *Contact Us for Waitlist Options]](http://lafermecoworking.com/cdn/shop/files/LF_7_104_c0734ea5-a878-49f3-bb8f-3841c7aa23a0.jpg?v=1751849537&width=1445)